
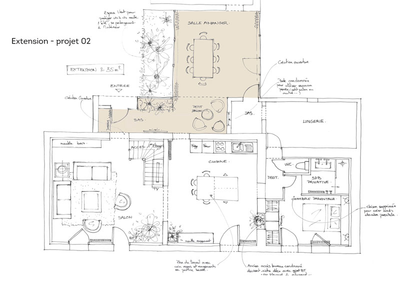
Les propriétaires désiraient créer une liaison entre leur habitation et la dépendance.
L’extension s’intègre parfaitement aux 2 bâtiments et offre une véritable entrée et une confortable salle à manger ouverte coté jardin.
La dépendance abrite la chambre de l’aîné avec sa salle d’eau et une lumineuse mezzanine destinée aux invités.
Myriam est très professionnelle. Elle nous a apporté de très bonnes idées pour la création d’un agrandissement, avec un œil esthétique mais également pratique.
Nous la recommandons les yeux fermés.